現在の取扱い物件数
アクセスランキング



新着物件



価格改定物件

会社案内


株式会社リベスト

〒023-1131 岩手県奥州市江刺愛宕字橋本243

株式会社リベスト
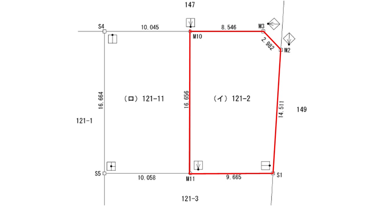
盛岡市門2丁目121-2
物件No. NI0060
【学区】中野小学校
面積50.65 坪 (167.47 ㎡)
価格11,200,000 円

人気の角地になります! 使い勝手の良い土地に是非プランニング してみませんか?

区画 面積 金額 成約状況
50.65 坪 (167.47 ㎡) 11,200,000 円
価格 11,200,000 円 建ぺい率 50%
所在地 盛岡市門2丁目121-2 容積率 80%
交通 バス停 岩手県交通 門二丁目 停歩5分 土地面積 50.65 坪 (167.47 ㎡)
通学区 盛岡市-中野
中野小学校
河南中学校
地目 宅地
設備-水道 引き込み済み 現況 宅地
設備-排水 下水道引き込み済み 用途地域 第一種低層住居専用地域
都市計画 区域内 市街化区域 防火地域 要調査
接道 北面公道
北東面公道
引渡予定 即時
取引態様 売主  : 株式会社リベスト 免許番号 岩手県知事免許(8)第1829号

・角地

土地売買契約締結後 3 ヶ月以内に株式会社リベストと建築請負契約を締結することを条件とし、 期間内に建築請負が成立しなかった場合には土地売買契約は白紙となり、受領した金額は無利息で返却されます。

有効期限:2025/10/20

【位置情報に関するご注意】
現在位置情報は精査中の為、正確ではない場合があります。あくまで参考程度の情報となります。

 

この物件へのお問い合わせは下記フォームからお問い合わせいただけます。
お名前(必須)
ご住所(必須)
郵便番号
-
都道府県
市区町村
建物名
電話番号(必須) --
お電話希望時間 時頃
メールアドレス
(必須)

半角英数字でお客様のメールアドレスをご入力下さい

メールアドレス
(確認入力)
年齢(必須)
家族構成 大人名 / 子供
ご要望

(学区、ご予算、周辺環境等、条件があればこちらにご記入ください)

その他


この物件について問合せをする

物件のお問合せは、お電話・FAXでも受け付けております